Free shipping

On all orders over $99.00

 
30-day return

You have 30 days to return

 
Safe Shopping

Payment is 100% secure

 
Online support

Contact us 24/7

Deal of the day

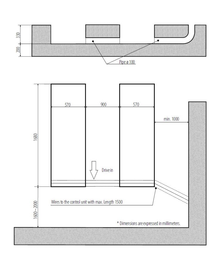
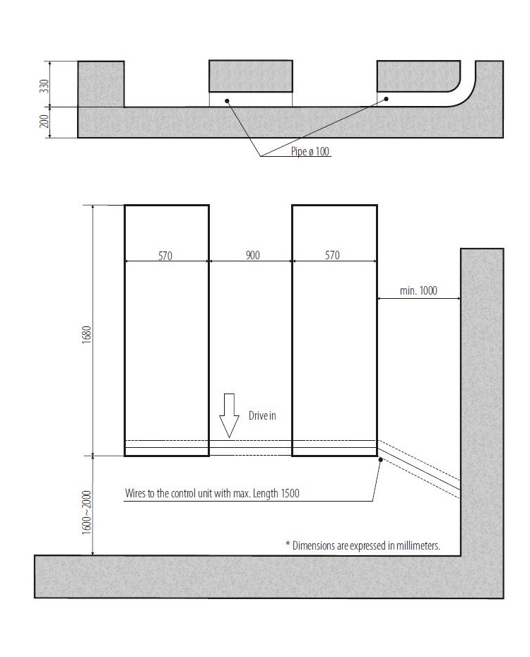
Chemical anchoring kit for lift installation (without oil)

80.00€ 0.00€

The kit is a ready-made solution for fixing a lift to concrete using chemical anchoring. The set includes three 330 ml Celo Resi FIX resins, which ensure strong and reliable adhesion to the substrate, even under heavy loads. It also comes with a set of 10 M18 x 300mm 8.8 grade studs with nuts, allowing for quick and precise installation. This configuration helps avoid additional searches and ensures that you have everything needed to carry out the installation work efficiently. Advantages: Chemical anchoring is suitable for heavy loads High-quality fasteners Simplifies preparation for installation Suitable for fastening lifts and other equipment to concrete

Best seller

Two-post lifts
Two-post lifts
  • Connected from the bottom
  • Connected on top
  • For minibuses
Scissor lifts
Scissor lifts
  • Mobile scissors...
  • Reinforced scissors...
  • Overhead shears...